
Auckland has approximately 100,000 cross-lease titles — roughly half of all cross-leases in New Zealand — with a heavy concentration on the North Shore, where the ownership type boomed after the Harbour Bridge opened. If you’re house-hunting in Auckland, there’s a strong chance you’ll encounter a cross-lease property. They’re often more affordable than freehold equivalents, but they come with unique complications that every buyer needs to understand before signing.
In a cross-lease arrangement, you and the other property owners jointly own the entire parcel of land. Each owner then holds a lease — typically for 999 years — over their individual dwelling as shown on a registered flats plan. This was originally a cost-effective shortcut to subdivision that avoided council fees, which is why it’s sometimes called a “poor man’s subdivision.” The government’s Settled.govt.nz resource provides a useful overview of cross-lease ownership basics.
The practical consequence is that you share legal obligations with your neighbours. Depending on your specific lease wording, you may need their written consent for structural alterations, exterior changes, extensions, or even repainting. This shared decision-making is where most cross-lease complications arise.
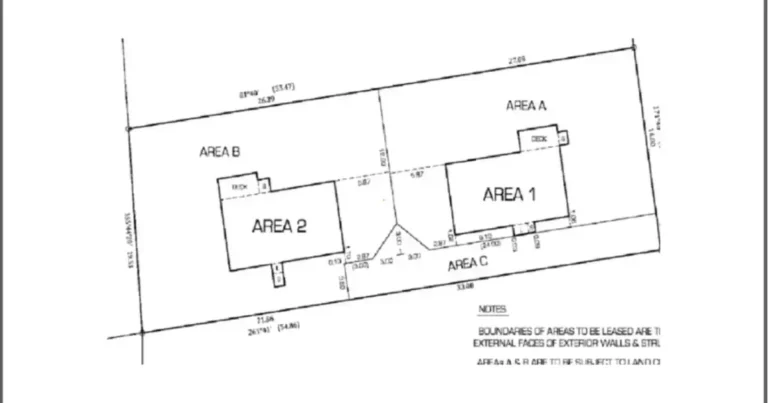
One of the most common issues with cross-lease properties is a defective flats plan. The flats plan is a registered document showing the footprint of each dwelling on the title. If the physical building no longer matches the plan — because someone added a deck, extended a room, or enclosed a porch without updating it — the title is considered defective.
This matters because banks may refuse to lend against a property with a defective title. A neighbouring cross-lease owner could also challenge unconsented alterations and require you to remove them or update the plan at your expense. Updating a flats plan typically costs $10,000 to $20,000, including surveying, legal fees, and council charges, and requires the consent of all other cross-lease owners.
During a pre-purchase inspection, our team conducts the same thorough assessment we would for any property — structure, roofing, cladding, moisture, subfloor, plumbing, and electrical systems. However, on a cross-lease property, we also pay close attention to several additional factors.
We compare the physical layout against available plans to identify obvious discrepancies. We note shared infrastructure, such as common driveways, drainage, fencing, and retaining walls, as their maintenance is a shared responsibility and can become contentious. On older cross-lease properties from the 1960s and 1970s, we’re also checking for asbestos-containing materials in cladding, roofing, textured ceilings, and floor tiles.
Cross-lease ownership means shared responsibility for common areas. A common driveway needing resurfacing, a failing shared retaining wall, or a drainage system servicing both properties — these costs fall on all owners, and disagreements about cost-sharing can be difficult to resolve. Unlike unit titles, cross-leases don’t have a body corporate or sinking fund, so decisions are made by informal agreements between neighbours.
If you’re buying with plans to renovate, understand the restrictions before you commit. Any structural alteration that changes the external footprint requires updating the flats plan — which means obtaining consent from your cross-lease neighbours, engaging a surveyor, and updating the title through LINZ. Depending on the lease wording, neighbours may be able to withhold consent for any reason, or only unreasonably.
This catches many Auckland buyers off guard, particularly in suburbs like Birkenhead, Glenfield, or Milford, where cross-leases are prevalent, and the homes are ripe for modernisation. Have your solicitor review the specific lease terms before making an offer.
Some owners convert to a fee simple (freehold) title to remove shared ownership complications. In Auckland, conversion typically costs $30,000 to $50,000 for a two-lot cross-lease. The upside can be significant — Auckland properties often increase in value by more than the conversion cost. Conversion requires agreement from all cross-lease owners and must meet district plan subdivision requirements.
When purchasing a cross-lease property, a building inspection is just one part of your due diligence. Have your solicitor review the lease terms and check the flats plan against the actual property. Request a LIM report from the Auckland Council. Any discrepancies between the building footprint and the registered plan need to be addressed before settlement. If the property is an apartment or unit title, the considerations differ further.
Cross-lease properties aren’t inherently bad purchases — many Auckland families live happily on cross-lease titles for decades. But the ownership structure creates risks that freehold buyers don’t face, and understanding those risks before you buy is the difference between a smart purchase and a costly mistake.

Alert Building Inspection Services provides comprehensive building reports across Wellington and New Zealand. Trust our expert inspectors to give you clarity and confidence in your property decisions. For professional building inspection services and expert advice, visit our website. You can also read more articles like this on our blog.
Part of the Alert Building Inspections network — serving all of New Zealand